中文
400-800-2231
首页
产品中心
关于我们
联系我们
产品系列
搬运车系列
半电动搬运车
全电动搬运车
手动搬运车
叉车系列
三支点叉车
前移式叉车
电动叉车
柴油汽油双燃料叉车
四向叉车
新能源锂电池平衡重式叉车
堆垛车系列
半电动堆垛车
全电动堆垛车
手动堆垛车
平台车系列
导轨式液压升降平台
电动平台车
液压蹬车桥&固定平台
固定式剪叉升降平台
铝合金升降平台
手动平台
货台高度调节板
卸货平台
牵引车及拣选车系列
电动牵引车
高空拣选车
高空取料车
低位拣选车
尾板系列
钢制尾板
铝制尾板
垂直式升降尾板
折叠式尾板
窄巷道平衡重式叉车
窄巷道平衡重式叉车
经销品牌
林德叉车
合力叉车
宝骊叉车
商用清洁机器人
商用清洁机器人
AGV系列
堆垛式叉车
平衡重叉车
前移式叉车
室外全天候无人搬运牵引
拖盘搬运式
重载牵引式
室外无人驾驶工业车辆
出租系列
全电动搬运车系列
全电动堆垛车系列
叉车系列
窄巷道平衡重叉车
平台系列
货架系列
普通横梁式
驶入式
穿梭式
搁板式
阁楼式
窄巷道式
悬臂式
后推式
流利式
移动式
重力式
自动化立体库
卡板托盘
防爆仓储系列
防爆叉车
防爆牵引车
防爆前移式叉车
脚轮系列
C250
C350
C550
C600
C700
C800
C810
其他
新能源动力电池组
24V160AH
24V200AH
24V220AH
24V260AH
高尔夫球车锂电池组
特种设备考证、年审
叉车上牌、年审
二手叉车
叉车配件
首页
>
产品中心
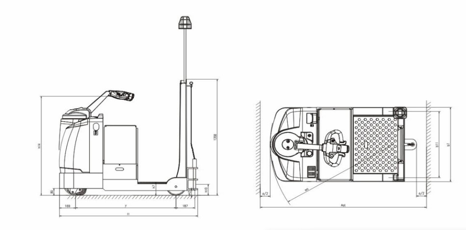
电动牵引车 / QDD45H
产品名称:
电动牵引车
产品型号:
QDD45H
产品手册
工程案例
产品价格咨询
产品介绍
技术参数
推荐产品
载重: 起升高度:
优尼大金刚/
载重: 起升高度:
电动扫地车/
S20
在线留言
留下您的联系方式,我们将在第一时间给您回复
提交
重置